Podwalna 5

Inwestycja

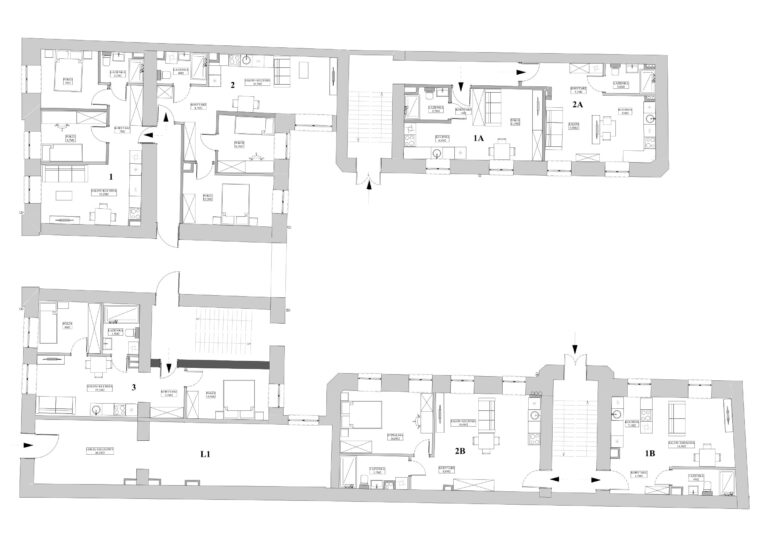
Parter

Parter kamienicy został podzielony na 7 lokali mieszkalnych oraz 1 lokal usługowy z wejściem bezpośrednio z ulicy. Teren wewnętrzny zamknięty będzie bramą. Za wyjątkiem miejsca dla niepełnosprawnych/karetki nie przewidujemy miejsc postojowych na terenie kamienicy, pod oknami mieszkań zaplanowana została wspólna zieleń oraz stojak na rowery. Na każdej klatce schodowej znajdzie się też wnęka z wygospodarowanym miejscem np. na wózek dziecięcy.

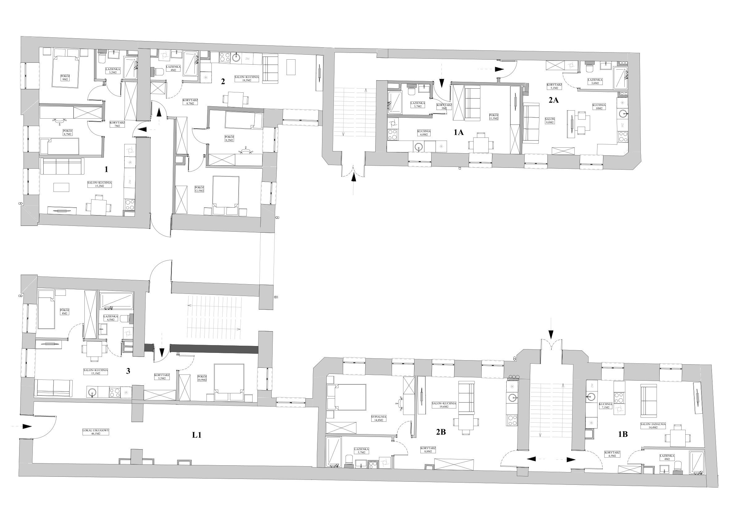
I Piętro

Pierwsze piętro to 10 lokali mieszkalnych o powierzchni od 25,10m2 do 50,70m2 w większości mieszkania mają balkony.

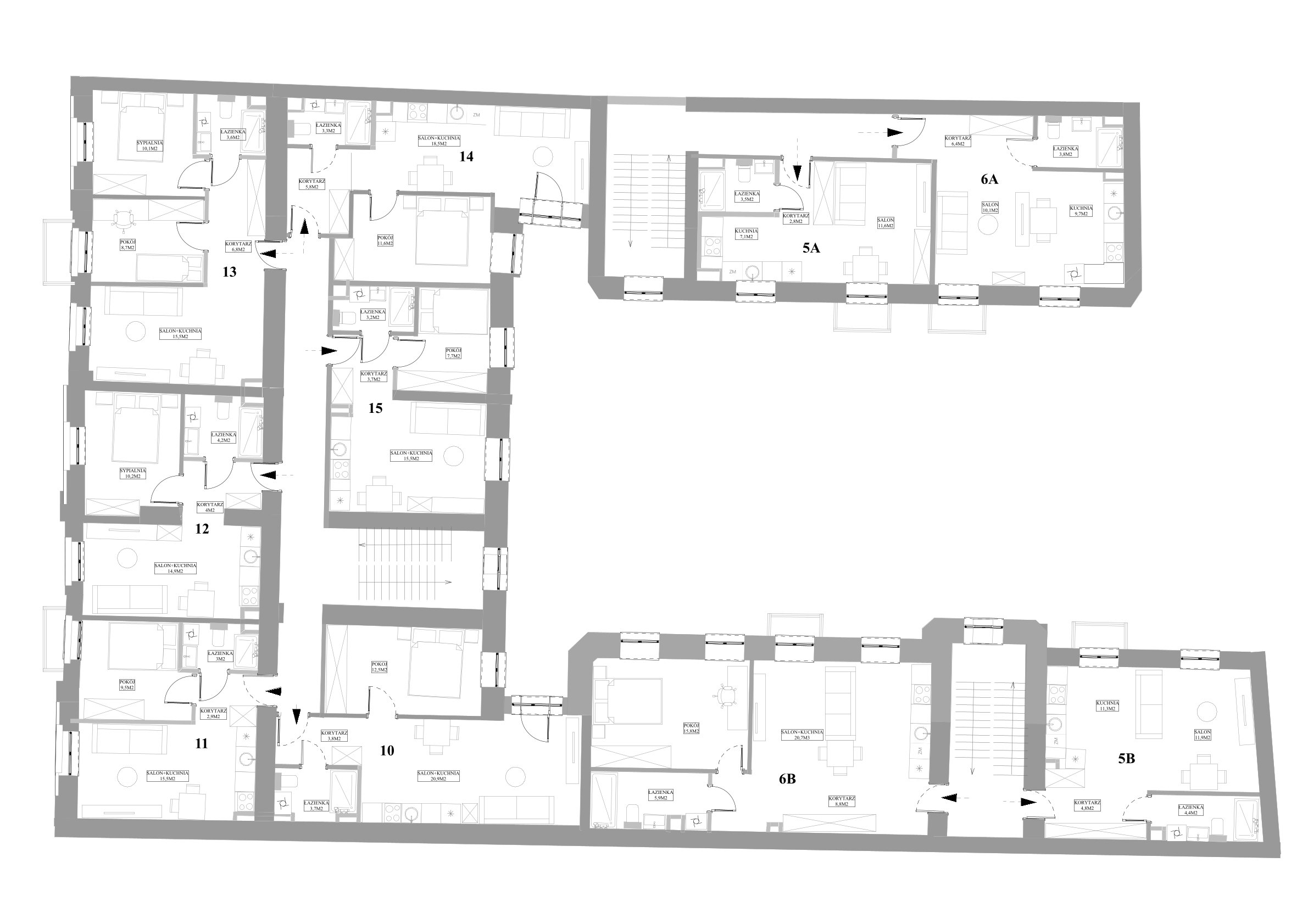
II Piętro

Drugie piętro to 10 lokali mieszkalnych o powierzchni od 25m2 do 51m2 w większości mieszkania mają balkony.

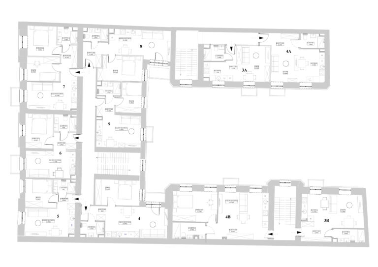
Poddasze

W drugim etapie inwestycji na poddaszu powstanie 9 mieszkań ze skosami i oknami połaciowymi o powierzchni od 25 m2 do 50,20 m2.

Masz pytania? Zadzwoń